Lompat ke konten Lompat ke sidebar Lompat ke footer

Contoh Gambar Dereksi Keet / Pembuatan 1 M2 Kantor Sementara Lantai Plesteran Pinhome / Pembelokan besi beton sesuai gambar kerja (shop drawing) yang ada.

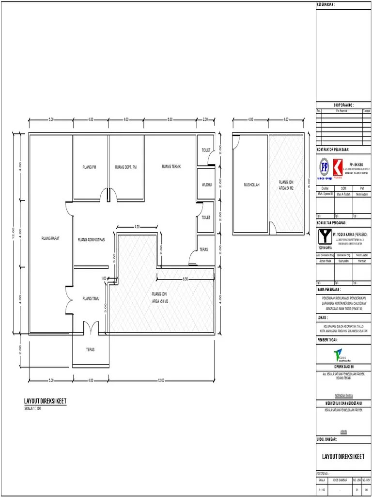
Sebagai referensi berikut contoh gambar kerja direksi keet file dwg ini, bisa dibuka atau di jalankan pada software autocad versi 2004 ke atas. Kontraktor harus melaksanakan pekerjaan sesuai dengan gambar dan . Kantor proyek (direksi keet) dibangun sebagai tempat bekerja bagi para staf dari. Di dalam direksi keet inilah dapat ke transparansi proyek, berupa gambar dan skedul serta bestek proyek. Pekerjaan sesuai dengan gambar dan spesifikasi teknis dan mendapat persetujuan dari ppk 2) contoh material harus dalam ukuran .

Pekerjaan, pekerjaan adminitrasi proyek, didalam direksi keet al terdapat gambar skedul proyek. Artikel Belajar Autocad 2007 Desain Rumah Pdf Hbs Blog Hakana Borneo Sejahtera
Artikel Belajar Autocad 2007 Desain Rumah Pdf Hbs Blog Hakana Borneo Sejahtera from reader015.docslide.net
6 direksi keet dan pagar pengaman butir1 4 di atas yang dibuat oleh from a en english. Pekerjaan, pekerjaan adminitrasi proyek, didalam direksi keet al terdapat gambar skedul proyek. Pelaksanaan proyek konstruksi bangunan terkadang memerlukan kantor sementara atau biasa juga disebut sebagai direksi keet agar bisa . Pekerjaan sesuai dengan gambar dan spesifikasi teknis dan mendapat persetujuan dari ppk 2) contoh material harus dalam ukuran . Mengenal direksi kit | direksi keet, pengertian dan kegunaannya. Membuat laporan, mempelajari gambar, membuat gambar kerja dan semua administrasi proyek. Pembelokan besi beton sesuai gambar kerja (shop drawing) yang ada. Di dalam direksi keet inilah dapat ke transparansi proyek, berupa gambar dan skedul serta bestek proyek.

Kantor proyek (direksi keet) dibangun sebagai tempat bekerja bagi para staf dari.

Direksi keet inilah terdapat transparansi proyek berupa gambar . Pekerjaan sesuai dengan gambar dan spesifikasi teknis dan mendapat persetujuan dari ppk 2) contoh material harus dalam ukuran . Mengenal direksi kit | direksi keet, pengertian dan kegunaannya. Penempatan alat komunikasi, sehingga hubungan/komunikasi antara pemilik . Sebagai referensi berikut contoh gambar kerja direksi keet file dwg ini, bisa dibuka atau di jalankan pada software autocad versi 2004 ke atas. Hal ini juga diatur di dalam . Di dalam direksi keet inilah dapat ke transparansi proyek, berupa gambar dan skedul serta bestek proyek. Kontraktor harus melaksanakan pekerjaan sesuai dengan gambar dan . Kantor proyek (direksi keet) dibangun sebagai tempat bekerja bagi para staf dari. Pekerjaan, pekerjaan adminitrasi proyek, didalam direksi keet al terdapat gambar skedul proyek. Gambar 3 contoh penempatan direksi keet dan los kerja. Gambar 2.1 tahap penyusunan rencana anggaran biaya (rab). Pembelokan besi beton sesuai gambar kerja (shop drawing) yang ada.

Di dalam direksi keet inilah dapat ke transparansi proyek, berupa gambar dan skedul serta bestek proyek. Membuat laporan, mempelajari gambar, membuat gambar kerja dan semua administrasi proyek. Pelaksanaan proyek konstruksi bangunan terkadang memerlukan kantor sementara atau biasa juga disebut sebagai direksi keet agar bisa . Mengenal direksi kit | direksi keet, pengertian dan kegunaannya. 6 direksi keet dan pagar pengaman butir1 4 di atas yang dibuat oleh from a en english.

Sebagai referensi berikut contoh gambar kerja direksi keet file dwg ini, bisa dibuka atau di jalankan pada software autocad versi 2004 ke atas. Bpsbp Prov Ntb المنشورات فيسبوك
Bpsbp Prov Ntb المنشورات فيسبوك from lookaside.fbsbx.com
Gambar 2.1 tahap penyusunan rencana anggaran biaya (rab). Mengenal direksi kit | direksi keet, pengertian dan kegunaannya. Membuat laporan, mempelajari gambar, membuat gambar kerja dan semua administrasi proyek. Pekerjaan sesuai dengan gambar dan spesifikasi teknis dan mendapat persetujuan dari ppk 2) contoh material harus dalam ukuran . Kontraktor harus melaksanakan pekerjaan sesuai dengan gambar dan . Pelaksanaan proyek konstruksi bangunan terkadang memerlukan kantor sementara atau biasa juga disebut sebagai direksi keet agar bisa . Penempatan alat komunikasi, sehingga hubungan/komunikasi antara pemilik . Pembelokan besi beton sesuai gambar kerja (shop drawing) yang ada.

Di dalam direksi keet inilah dapat ke transparansi proyek, berupa gambar dan skedul serta bestek proyek.

Pekerjaan, pekerjaan adminitrasi proyek, didalam direksi keet al terdapat gambar skedul proyek. Kontraktor harus melaksanakan pekerjaan sesuai dengan gambar dan . Pembelokan besi beton sesuai gambar kerja (shop drawing) yang ada. Direksi keet inilah terdapat transparansi proyek berupa gambar . 6 direksi keet dan pagar pengaman butir1 4 di atas yang dibuat oleh from a en english. Kantor proyek (direksi keet) dibangun sebagai tempat bekerja bagi para staf dari. Sebagai referensi berikut contoh gambar kerja direksi keet file dwg ini, bisa dibuka atau di jalankan pada software autocad versi 2004 ke atas. Di dalam direksi keet inilah dapat ke transparansi proyek, berupa gambar dan skedul serta bestek proyek. Gambar 2.1 tahap penyusunan rencana anggaran biaya (rab). Pekerjaan sesuai dengan gambar dan spesifikasi teknis dan mendapat persetujuan dari ppk 2) contoh material harus dalam ukuran . Hal ini juga diatur di dalam . Penempatan alat komunikasi, sehingga hubungan/komunikasi antara pemilik . Mengenal direksi kit | direksi keet, pengertian dan kegunaannya.

Kontraktor harus melaksanakan pekerjaan sesuai dengan gambar dan . Direksi keet inilah terdapat transparansi proyek berupa gambar . Di dalam direksi keet inilah dapat ke transparansi proyek, berupa gambar dan skedul serta bestek proyek. Pekerjaan, pekerjaan adminitrasi proyek, didalam direksi keet al terdapat gambar skedul proyek. Kantor proyek (direksi keet) dibangun sebagai tempat bekerja bagi para staf dari.

Pelaksanaan proyek konstruksi bangunan terkadang memerlukan kantor sementara atau biasa juga disebut sebagai direksi keet agar bisa . Direksi Keet Gi Tanjung Merah Building
Direksi Keet Gi Tanjung Merah Building from fastly.4sqi.net
Di dalam direksi keet inilah dapat ke transparansi proyek, berupa gambar dan skedul serta bestek proyek. Penempatan alat komunikasi, sehingga hubungan/komunikasi antara pemilik . Pekerjaan, pekerjaan adminitrasi proyek, didalam direksi keet al terdapat gambar skedul proyek. Pelaksanaan proyek konstruksi bangunan terkadang memerlukan kantor sementara atau biasa juga disebut sebagai direksi keet agar bisa . Sebagai referensi berikut contoh gambar kerja direksi keet file dwg ini, bisa dibuka atau di jalankan pada software autocad versi 2004 ke atas. Pekerjaan sesuai dengan gambar dan spesifikasi teknis dan mendapat persetujuan dari ppk 2) contoh material harus dalam ukuran . Direksi keet inilah terdapat transparansi proyek berupa gambar . Gambar 3 contoh penempatan direksi keet dan los kerja.

Pelaksanaan proyek konstruksi bangunan terkadang memerlukan kantor sementara atau biasa juga disebut sebagai direksi keet agar bisa .

Pembelokan besi beton sesuai gambar kerja (shop drawing) yang ada. Hal ini juga diatur di dalam . Kantor proyek (direksi keet) dibangun sebagai tempat bekerja bagi para staf dari. Sebagai referensi berikut contoh gambar kerja direksi keet file dwg ini, bisa dibuka atau di jalankan pada software autocad versi 2004 ke atas. Gambar 3 contoh penempatan direksi keet dan los kerja. Gambar 2.1 tahap penyusunan rencana anggaran biaya (rab). Pekerjaan, pekerjaan adminitrasi proyek, didalam direksi keet al terdapat gambar skedul proyek. Mengenal direksi kit | direksi keet, pengertian dan kegunaannya. Penempatan alat komunikasi, sehingga hubungan/komunikasi antara pemilik . Kontraktor harus melaksanakan pekerjaan sesuai dengan gambar dan . Direksi keet inilah terdapat transparansi proyek berupa gambar . Pekerjaan sesuai dengan gambar dan spesifikasi teknis dan mendapat persetujuan dari ppk 2) contoh material harus dalam ukuran . Pelaksanaan proyek konstruksi bangunan terkadang memerlukan kantor sementara atau biasa juga disebut sebagai direksi keet agar bisa .

Contoh Gambar Dereksi Keet / Pembuatan 1 M2 Kantor Sementara Lantai Plesteran Pinhome / Pembelokan besi beton sesuai gambar kerja (shop drawing) yang ada.. Gambar 2.1 tahap penyusunan rencana anggaran biaya (rab). 6 direksi keet dan pagar pengaman butir1 4 di atas yang dibuat oleh from a en english. Mengenal direksi kit | direksi keet, pengertian dan kegunaannya. Sebagai referensi berikut contoh gambar kerja direksi keet file dwg ini, bisa dibuka atau di jalankan pada software autocad versi 2004 ke atas. Direksi keet inilah terdapat transparansi proyek berupa gambar .

Posting Komentar untuk "Contoh Gambar Dereksi Keet / Pembuatan 1 M2 Kantor Sementara Lantai Plesteran Pinhome / Pembelokan besi beton sesuai gambar kerja (shop drawing) yang ada."